1、竹林式的蔬菜有机水培技术
建立简易的栽培苗床:采用水泥砖砌成宽1.2米、高15-20厘米、苗床的长度可因大棚长距为准灵活设定,并于床底铺上薄膜作为营养液循环的蓄水池与浮萍生产系统。
制作竹材栽培柱:把毛竹锯成约1.5-2米长的段材,作为种植蔬菜的栽培柱,再于毛竹节位的地方,沿竹节的四周均匀地打孔,而且在打孔时以竹节节位的正中稍偏上的部位钻入,钻制成直径约1-2厘米的定植孔,作为蔬菜植物的栽培植入孔,一般大小的毛竹可于节的四周打上3-4孔,这样每段竹材就成为具有20个以上栽培孔的种植柱。(打制竹孔是关键技术,打成的孔径位置约有2/3在节的上方,1/3在节的下方,这样就形成了每个定植孔下方都有一个能让营养液下漏到下一竹节的小孔,从而使栽培柱的营养液形成了循环,特别要注意的是打孔时不宜过深,以免竹节下漏孔过大而不蓄水,影响该孔蔬菜的供液与生长,下漏孔径以掌握在0.5-1厘米的规格为宜。) 为了能让栽培柱能稳定地立于苗床的营养液池内,还需在竹段的底部订制一块木板,以利于栽培竹段能稳固地垂立于池中,以实现立体式垂直栽培,提高空间利用率,通常栽培蔬菜的竹林布局以间距为50厘米的梅花桩式布局为好,如果种植番茄类可加大间距为60-80厘米为宜,一个宽1-1.2米的蓄水苗床内可横向布设两段,这样每平方米就可以至少布立4根栽培柱,就可以实现每平方米栽培上百株的蔬菜,是平常平面种植的数倍利用率。而且垂立栽培生长的蔬菜还具有更好的通风性,又便于操作人员的直立管理,是一种省力化高效化的栽培方法。


营养液循环管道的建设,布设好竹林式的种植柱后,接着就是安装营养液的水循环系统,这种循环系统的布局安装较为简易,只需一台加压水泵提水就可,省电而且方便,建设时在大棚的顶部架设送水软管,再于每根柱的上方引出一根用于是滴灌的毛管就行,把毛管插入垂立的竹段上端,就可以让水或营养液沿着竹段的竹节一节节地往下流,形成了栽培柱内的营养液循环,向下渗漏的营养液水又回蓄于栽培床内,如此周而复始的间歇性循环滴灌,就能为蔬菜的生长提供充足的肥水,以实现立式的循环水培。
2.插管式栽培柱立体无土栽培系统结构与建造
2.1 插管式栽培柱
2.1.1 插管式栽培柱的基本结构及其构件制作
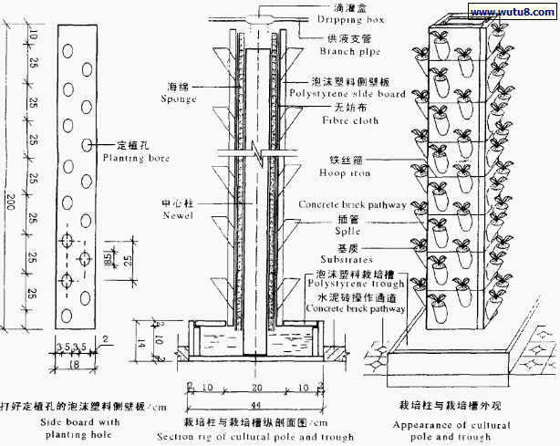
插管式栽培柱的主体由中心柱、海绵、无妨布、侧壁板、铁丝箍等构件组装而成。栽培柱中心是一根长方体形聚苯乙烯泡沫塑料方柱,起支撑作用,称作中心柱,规格为200cm×12.5cm×l2.5cm,聚苯乙烯泡沫塑料材料的密度为20kg/m3。中心柱外侧是一层大孔隙的低密度海绵,2cm厚,与栽培柱等长。海绵外是一层无妨布,可阻止蔬菜根系和基质进人海绵。最外层是4块聚苯乙烯泡沫塑料侧壁板,规格为200cm x l8cm×2cm,每块侧壁板上打2列定植孔,共15个,两列定植孔交错排列(图1)。

栽培柱及栽培槽结构示意图

栽培柱及栽培槽结构示意图
用自制打孔器在侧壁板上烫出定植孔。用直径50mm、壁厚2mm 的钢管制作打孔器,将钢管先端削薄,并用型材切割机截成37°的马蹄形,后部焊接一截直径20mm 的钢管作手柄,并套绝缘塑料管(图2)。


打孔时,将打孔器先端在电炉上加热,而后将其摁压在侧壁板上的预定位置,即可烫出一个倾斜的定植孔。栽培柱侧壁板外用铁丝箍捆束,铁丝箍呈边长20cm的正方形,搭接处焊牢。定植时,在定植孔上安插插管,插管由直径50mm的U—PVC硬质塑料管经型材切割机切割而成(图2)。
2.1.2 插管式栽培柱的组装 先用海绵包裹中心柱,并缠绕透明塑料胶带临时固定。而后在其外包裹无妨布,也用塑料胶带临时固定。外围安放4块泡沫侧壁板,并从一端套人铁丝箍,共8道。在栽培柱的顶端,中心柱要比海绵、无妨布和侧壁板低5~10cm,以防供液时溢液。
2.2 平面栽培槽 将温室地面整平,向一端倾斜,坡降1:200,夯实。每两条栽培槽为1组,隔距25cm,各组栽培槽间隔lOOcm,在栽培槽之间的地面上铺水泥方砖,作为田间操作通道。用聚苯乙烯泡沫塑料制作栽培槽,用聚苯胶粘合槽框和槽底,栽培槽内铺0.1mm厚的黑色或黑白双色塑料薄膜,以防漏液。栽培槽上覆盖泡沫塑料盖板,在盖板中央位置每隔100cm打1个20cm×20cm的方孔,用于安插栽培柱,同组内两条栽培槽盖板上的方孔相互交错排列。
2.3 营养液循环系统
2.3.1 贮液池与水泵 贮液池建在地下,要经防渗处理并加盖。根据栽培面积确定贮液池容积和水泵功率,例如,1000~2000m2的温室选用1台口径为25~50mm、扬程30m、功率为1.5kw的自吸泵即可,贮液池容积应在12m 以上,而在单栋面积为300m2的温室,贮液池容积应在4m3以上,潜水泵功率550W。用具有存储记忆功能的电子定时器控制水泵的供液频率和时间。
2.3.2 供液管道
主管道使用直径37~50mm的PVC或PE塑料管,支管道多采用PE软管。在行栽培柱上方悬吊一条直径16mm的支管道,首端连接上一级供液管,末端封堵。在经过每个栽培柱顶端的供液支管上连接1个滴液盒,或在供液支管上安插2根长约30cm直径2~3mm水阻管,水阻管另一端也削尖,穿过泡沫塑料侧壁顶部加以固定。
另一种供液方式是用直径25mm的PVC管作供液支管,在每个栽培柱上方安装1个塑料水龙头,这种方式可任意调节每个栽培柱的供液量,且发生不易堵塞现象。
2.3.3 回流管道
回流管道预先埋于地下,在栽培槽较低的一端设置排液口,垂直安装一截直径50mm的PVC管并与水平埋设的直径75mm 的PVC回流支管相连,回流支管再连接通向贮液池的直径110~160mm的PVC回流主管。这样,营养液经各级供液管道流经栽培柱后,又经各级回流管道流回贮液池,如此循环。
2.1.2 插管式栽培柱的组装 先用海绵包裹中心柱,并缠绕透明塑料胶带临时固定。而后在其外包裹无妨布,也用塑料胶带临时固定。外围安放4块泡沫侧壁板,并从一端套人铁丝箍,共8道。在栽培柱的顶端,中心柱要比海绵、无妨布和侧壁板低5~10cm,以防供液时溢液。
2.2 平面栽培槽 将温室地面整平,向一端倾斜,坡降1:200,夯实。每两条栽培槽为1组,隔距25cm,各组栽培槽间隔lOOcm,在栽培槽之间的地面上铺水泥方砖,作为田间操作通道。用聚苯乙烯泡沫塑料制作栽培槽,用聚苯胶粘合槽框和槽底,栽培槽内铺0.1mm厚的黑色或黑白双色塑料薄膜,以防漏液。栽培槽上覆盖泡沫塑料盖板,在盖板中央位置每隔100cm打1个20cm×20cm的方孔,用于安插栽培柱,同组内两条栽培槽盖板上的方孔相互交错排列。
2.3 营养液循环系统
2.3.1 贮液池与水泵 贮液池建在地下,要经防渗处理并加盖。根据栽培面积确定贮液池容积和水泵功率,例如,1000~2000m2的温室选用1台口径为25~50mm、扬程30m、功率为1.5kw的自吸泵即可,贮液池容积应在12m 以上,而在单栋面积为300m2的温室,贮液池容积应在4m3以上,潜水泵功率550W。用具有存储记忆功能的电子定时器控制水泵的供液频率和时间。
2.3.2 供液管道
主管道使用直径37~50mm的PVC或PE塑料管,支管道多采用PE软管。在行栽培柱上方悬吊一条直径16mm的支管道,首端连接上一级供液管,末端封堵。在经过每个栽培柱顶端的供液支管上连接1个滴液盒,或在供液支管上安插2根长约30cm直径2~3mm水阻管,水阻管另一端也削尖,穿过泡沫塑料侧壁顶部加以固定。
另一种供液方式是用直径25mm的PVC管作供液支管,在每个栽培柱上方安装1个塑料水龙头,这种方式可任意调节每个栽培柱的供液量,且发生不易堵塞现象。
2.3.3 回流管道
回流管道预先埋于地下,在栽培槽较低的一端设置排液口,垂直安装一截直径50mm的PVC管并与水平埋设的直径75mm 的PVC回流支管相连,回流支管再连接通向贮液池的直径110~160mm的PVC回流主管。这样,营养液经各级供液管道流经栽培柱后,又经各级回流管道流回贮液池,如此循环。

3.管道栽培
3.无土栽培专用栽培篮( 柱式栽培系统 、 箱式栽培系统 )
上口大径70mm,小径63mm,底大径54mm,小径44mm,挂耳高度21mm,挂钩跨度6mm,挂钩宽度10mm,篮子深度79mm,总高度100mm。重量10g。
柱式栽培系统包含:储液箱、承载盖、栽培篮、莲花盆、连接器、分水器、输送管、循环泵、温度探测器以及电脑程序控制器组成。其中电脑程序控制器和温度探测器是本系统的大脑和神经中枢,其他部件为躯干,共同组成一套有机整体。 本系统可以栽培30颗蔬菜或者花卉。
柱式栽培系统包含:储液箱、承载盖、栽培篮、莲花盆、连接器、分水器、输送管、循环泵、温度探测器以及电脑程序控制器组成。其中电脑程序控制器和温度探测器是本系统的大脑和神经中枢,其他部件为躯干,共同组成一套有机整体。 本系统可以栽培30颗蔬菜或者花卉。

箱式栽培系统包含:储液箱、承载盖、栽培篮、分水器、输送管、循环泵、温度探测器以及电脑程序控制器组成。其中电脑程序控制器和温度探测器是本系统的大脑和神经中枢,其他部件为躯干,共同组成一套有机整体。
4. 家庭水培瓜果蔬菜
(1)、器具的选择:各种塑料盒或箱为栽培容器,以泡沫板为漂浮定植板,以水族箱常用的小型充气泵为供氧泵,再购置一个定时器即可进行。

(2)、无土育苗:利用岩棉、或海绵块播种育苗,也可于以珍珠岩或陶粒为基质的定植杯中育苗,但一定要无土育苗,并且要保持基质的高湿度。

(3)、定植与管理:把培育好的净根苗移至定植用的漂浮板上,并按使用浓度于水中加入适量的营养液,调试好定时充氧系统即可,一个充氧泵可满足多个箱或盒的供氧。

5.室内

6.屋顶

7. 利用平底塑料盆
8.阳台用袜子栽培植物
(1)最好是吸水性较好的棉袜, 袜在这里的用途就相关于营养袋或营养钵,但它有更好的透气性。
(2)人工基质的配制, 从基质的物理化学性质考虑采用以下的配方较好,珍珠岩:蛭石:泥炭=1:1:1。
(3)填充基质与定植,把配好的基质填入到旧袜内,一般填充至袜深的3/4即可,然后浇足水栽上苗,并把袜子悬吊于木架上或栅栏上,或者灵活随机的因空间而悬吊布设,为了使管理方便或者防水渗漏,也可于袜子外再套装一只塑料袋,可以起到营养液的装盛作用,又可起到夏季高温时的适当保湿。
(4)更为科学的设计,是与滴灌结合,每只袜注入式的连接一个滴灌头,可以是医用的输液头,也可是专用的滴灌头,把每只袜之间用滴灌管与滴头串联在一起,再通过稍高的装水养液袋或容器进行自流式的灌溉。晚上时停止灌溉时,只需把水袋或容器的下移与袜子相平或稍低即可停止灌水输液。
9. 弃置品作为栽培系统
(1)材料准备:塑料管件三通一个、带盖的矿泉水瓶三只、棉质的引水白布条三根、剪制用的剪刀一把、人工基质若干、海绵少许等。 (2)制作方法:A基座的制作,选一三通管件,其通径最好恰与矿泉水瓶的瓶径套接时相符,基座底用堵头堵塞以防漏水,基座上端口,选一能与装营养液的稍大可乐瓶的瓶盖相符,便于套接或外接盖帽拧紧安装更方便。B、栽培容器的制作,于瓶侧开一长方形的口,可用剪刀剪制,用于装基质及定植植株。C、引水棉线的安装,于每一栽培瓶内都引埋一棉线条,它是联接瓶内基质与营养液瓶间的肥水虹吸通道,制作时棉线与瓶盖或管径间的空隙用海绵塞紧以防漏水,这样就形成了虹吸自灌装置。D、基质配制及填充,人工基质配制可用珍珠岩、蛭石、泥炭或废菌糠等进行科学配制,并把配好的基质覆埋填充在引水棉线的上方,这样就形成了棉线吸收肥水,基质固定植株,营养液瓶贮藏营养的无土栽培体系。
(3)栽培:只需往平置的瓶泉瓶内播种或栽小苗即可,通常选择一些植株稍小的叶菜类或花丛较小的草花类栽培。栽培管理方便,只要做好营养液瓶的加液工作即可,植株的管理与其他方式的栽培相同。

10. 阳台中的海绵播种育苗
育苗方法通常以海绵块育苗为主,特别适用于小植株的叶菜类。先用切割工具把海绵加工成巧克力状的海绵块,然后再与海绵块上剪或割制裂缝,经这样人工加工的海绵块就成为很好的育苗基质了。育苗时只要把种子小心的播入海绵裂缝,并把播种后的海绵块浸于盛有薄层营养液的育苗盒中,可以是不漏水的生活家用敞口塑料容器,于容器中装注0.5cm以下的营养液,然后把它整齐的排放于养液盒中,平时可进行浇液管理,直至长成具有发达根系的壮苗方可移栽至管道系统或漂浮系统,也同样可用于人工基质栽培系统。育苗期间对海绵块进行阶段性地喷浇营养液,这对于出苗及壮苗效果极佳。
11.衣厨式的阳台栽培架
把简易的衣厨外衬帆布换成透光的薄膜就变成了阳台农业栽培的小温室,可以利用摆放衣物的层间隔栏作为立体式栽培植物的托架,把由一次性杯及塑料盒组成的简易无土蔬菜栽培单元,一个个整齐地往架上摆放,就形成了具有高利用率的立体式无土栽培架。

12. 废弃的瓶框盒篮
(1)相关材料:各种废弃的瓶框盒篮;珍珠岩、蛭石、陶粒、泥炭、废菌糠等人工基质;商用的营养液;若干瓜果蔬菜种子。
(2)制作与栽培:定植杯的加工制作,当选用一次性的塑料饮水杯作定植杯时,需先在其杯底切割或剪制成放射状的也孔状的筛孔,利于根系的穿透;对于伊拉罐可于罐底扎孔制作成栽培容器;如果是有筛孔的塑料垃圾桶,只需在桶底纵刻即可;而不漏水的方盒的浅底敞口盆,则可作为装营养液的托盘或底盘。制好定植杯或篮后,接着就是装入一定容量的栽培固定基质,它是植物生长的载体,也是肥与水的介质,可按照珍珠岩:蛭石:泥炭(或木糠、废菌糠)为1:1:1的比例混合配制,装填入定植杯或篮的1/2-3/4的高度即可。最后把装填的基质的定植杯或篮置于一个装有浅层营养液的托盘或底盘中,一般以1-2cm的液层为佳,平时管理时,只需向定植杯间段性的浇施营养液即可。

